Quilted Ecology

Year : 2022

Team Mate: Pa Ramyarupa

Location: Sebeta, Ethiopia

Quilted Ecology is an urban intervention designed to preserve local culture, and enhance the symbiotic ecosystem of people, flora, and fauna in Sebeta, Ethiopia.

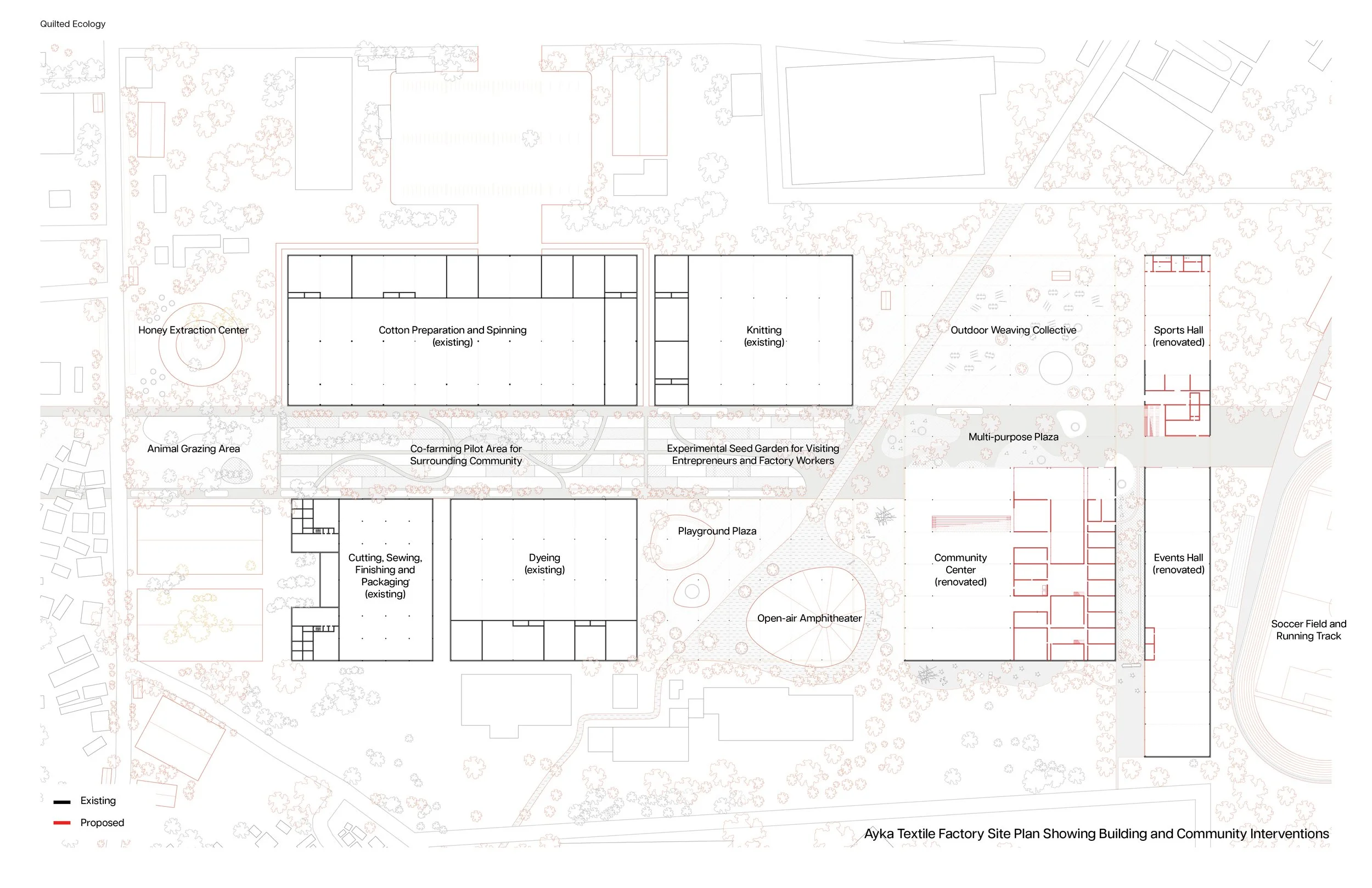
The site, Ayka Addis Textile Factory a once active 140,000sqm garment facility unable to recover after defaulting, left the workers unemployed and the local communities divided by rapid industrialization.

The project reimagines the abandoned factory site as a spatial quilt, interweaving Sebeta’s domestic, public, and natural realms through five connective “threads”: Harvest, Shelter, Mobility, Learning, and Wellbeing. These threads transform industrial voids into active corridors featuring resident-built incremental housing, organic farming training centers, and neighborhood water dispensaries.

The village is anchored by a community-run textile collective and creative studios for carpentry, music, and painting, fostering an intergenerational exchange of skills.

To address environmental displacement, the design incorporates interspecies care, such as dispersed chicken coops, beehives for honey production, and a “watering hole” for local animals. The architecture utilizes repurposed materials from disassembled factory buildings, including concrete slabs and perforated bricks, to create thermal thresholds like the traditional Ethiopian veranda.

By connecting existing neighborhoods to the site, Quilted Ecology transforms an isolated factory into an essential community resource where people, flora, and fauna mingle in a new form of public life.

Previous
Previous

Stories We Should Tell

Next
Next

Play Pass Play